beat365英国官方网站东单校区的吴宪大楼、基金会大楼和18号楼建筑原有避雷系统经专业机构检测评审后不能满足现行相关规范要求,现依据现行相关规范对上述建筑防雷接地体统进行修缮,诚挚邀请具有制作安装能力及相关资质的公司参选。
一、目前防雷接地系统存在的问题:
1、设备配电箱内缺少浪涌保护器;
2、屋面设备缺少防雷接地保护性跨接地线;
3、屋面接闪带缺少防雷引下线;
4、接闪带上有未知线缆缠绕;
二、防雷接地的技术指标:
1、需满足《GB-50303-2015》电气质量验收规范;《GB-50057-94》建筑物防雷设计规范;《GB-50343》建筑物电子安全系统防雷技术规范;
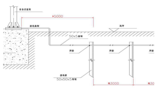
2、接地装置参考图集做法

3、 接地装置与引下线连接参考图集

4、现场照片:

三、本项目的资格要求及相应资料:
1.具备有效的营业执照和施工企业安全生产许可证,具备有效的建设行政主管部门颁发的建筑工程施工总承包三级及以上资质,并在中央国家机关(http://www.zycg.gov.cn)2021-2022年工程施工项目定点企业名录中;
2. 项目现场负责人必须持有机电专业二级建造师或以上等级证书;
3. 本项目属于整体专门面向中小企业采购的项目,供应商须为符合《政府采购促进中小企业发展管理办法》(财库[2020]46号)规定的中小企业(其中,小微企业包括视同为小型、微型企业的监狱企业、残疾人福利性单位)。本项目所属行业为建筑业。
4. 法定代表人为同一个人的两个及两个以上法人,母公司及其全资子公司、控股公司,不得同时参加本比选项目的比选。
5. 本次比选 不接受 (接受或不接受)联合体参选。
四、工程清单(详见附件)
五、采购预算(该条作为否决性条件)
控制价95221.93元。
注:以上价格为包干费用(包括原有不合格避雷系统的拆除清理,新避雷系统的制作、材料运输、安装、成品保护、人工费用、保险费用、税金等)。
六、工期及质保
工期要求:合同签订后30日历天完成拆除、供货及安装;
质量要求:符和防雷施工及质量验收相关规范,设备安装牢固可靠,自验收之日起质保期2年,在使用过程中提供必要的技术支持和配合工作。
七、比选材料组成
营业执照、法人身份证复印件、报价清单、实施方案(含工期)、产品质量安全承诺(格式自拟),参选人认为应补充的其他材料。
以上材料均需加盖单位公章,递交时需要密封良好,密封处加盖公章,递交份数:1份。
注:本项目名称为“beat365英国官方网站东单校区防雷接地修缮工程”
八、比选材料递交
递交时间:2024年9月9日下午14:00
递交地点:新天地大厦218-2
联系人:王老师,联系电话:010-65105957
九、评分标准
内 容 |
具 体 标 准 |
分值(分) |
参选报价 |
满足比选文件要求且最终报价最低的报价为评审基准价,其价格分为满分。其他参选人的价格分按照下列公式计算:报价得分=(评审基准价∕最终报价)×价格权值×100%。 |
50 |
实施方案 |
对技术参数的响应程度、制作安装细节等进行综合评审:实施方案一般,针对性不够强,得5分;实施方案基本全面,有一定针对性,得10;实施方案较全面,论述较清晰,措施较科学,针对性较强,得20分;实施方案全面细致,论述完整清晰,措施科学,针对性强,得30分; |
30 |
工期保证 |
完全满足工期要求得10分;每延后一天扣5分,扣完为止。 |
10 |
质量保证 |
质保期不满2年得0分;质保期满足2年要求得6分;质保期超过2年的,每增加一年加2分;本项累计最高10分。 |
10 |
总 分 |
100 |
|
beat365英国官方网站
行政后勤处
2024年9月4日